Foto Anthony Hopkins

Foto Anthony Hopkins


Ombygging leilighet Oslo
31 m2 stor leilighet fra 1960-tallet totalrenovert med plassbygde løsninger for optimal utnyttelse av plassen.
Nytt eikegulv
Ny innredning i gang
Nytt kjøkken og sofa
Ny opal glassdør til badet for å få dagslys inn på badet.
Fronter og innredning i poppel kryssfiner.
Eikeparkett hvittet med Osmo Dekorvoks 3111 + hardvoksolje 3062.
Benkeplate i eik og cararra marmor. Sofa trukket med grå ull.
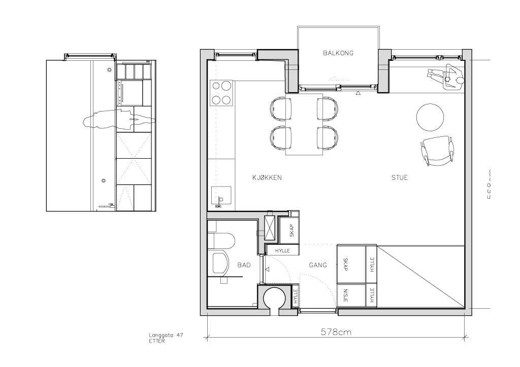
NY plan
Det er åpnet opp mellom kjøkken og oppholdsrom slik at det ble plass til et spisebord. Romfølelsen er utvidet.
Gangen har fått en innredning som utnytter plassen optimalt med et "loft" over gangen. Bokhyller integrert mot sengen.
Ny sofakrok ved vinduet med oppbevaring under.
Corianhylle over kjøkkenbenken.
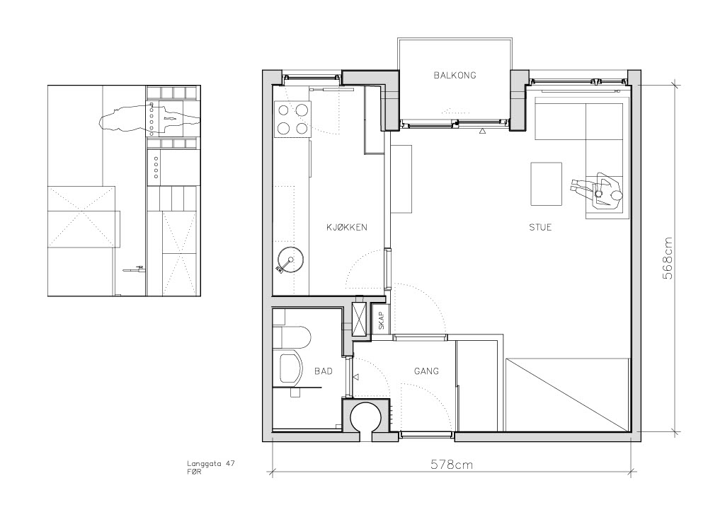
TIDLIGERE plan
Kjøkken og gang er separate rom.
Kjøkken med overskap.
TIDLIGERE bilder
Kjøkken og oppholdsrom med vegg mellom de 2 rommene.