
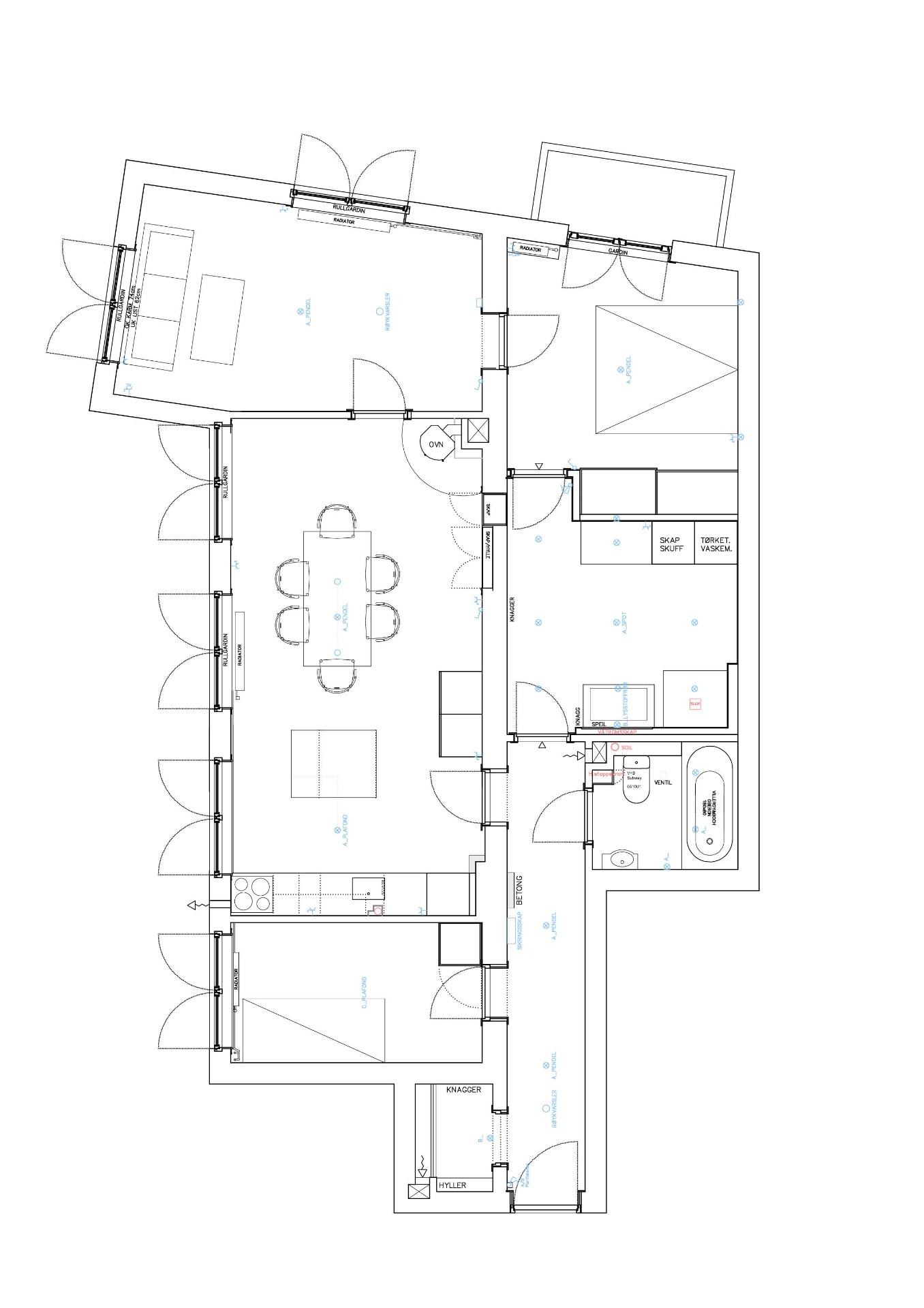
Tidligere plan
Høyskapvegg sto i veien for ganglinjen syntes jeg. Og døren inn til stuen var slagdør og smal.

Ombygging leilighet Oslo
85 m2 stor leilighet fra 1928 renovert med nytt kjøkken og innredning.
Nytt kjøkken
Ny innredning i stue og garderobe
Nye skyvedører mellom spiserom og stue og på soverommet
Skiferfliser ble lagt i inngangspartiet og inn i garderoben
El-ledninger ble slisset inn i veggen
Fronter og innredning i tresjiktsplater ask.
Benkeplate i tresjiktsplater ask og Silestone grå.
Parkett hvittet med Osmo.
Oppholdsrom malt i NCS 0501-Y01R, lister og himling i NCS 0500-N
Kjøkken i rødt NCS 4050-Y80R
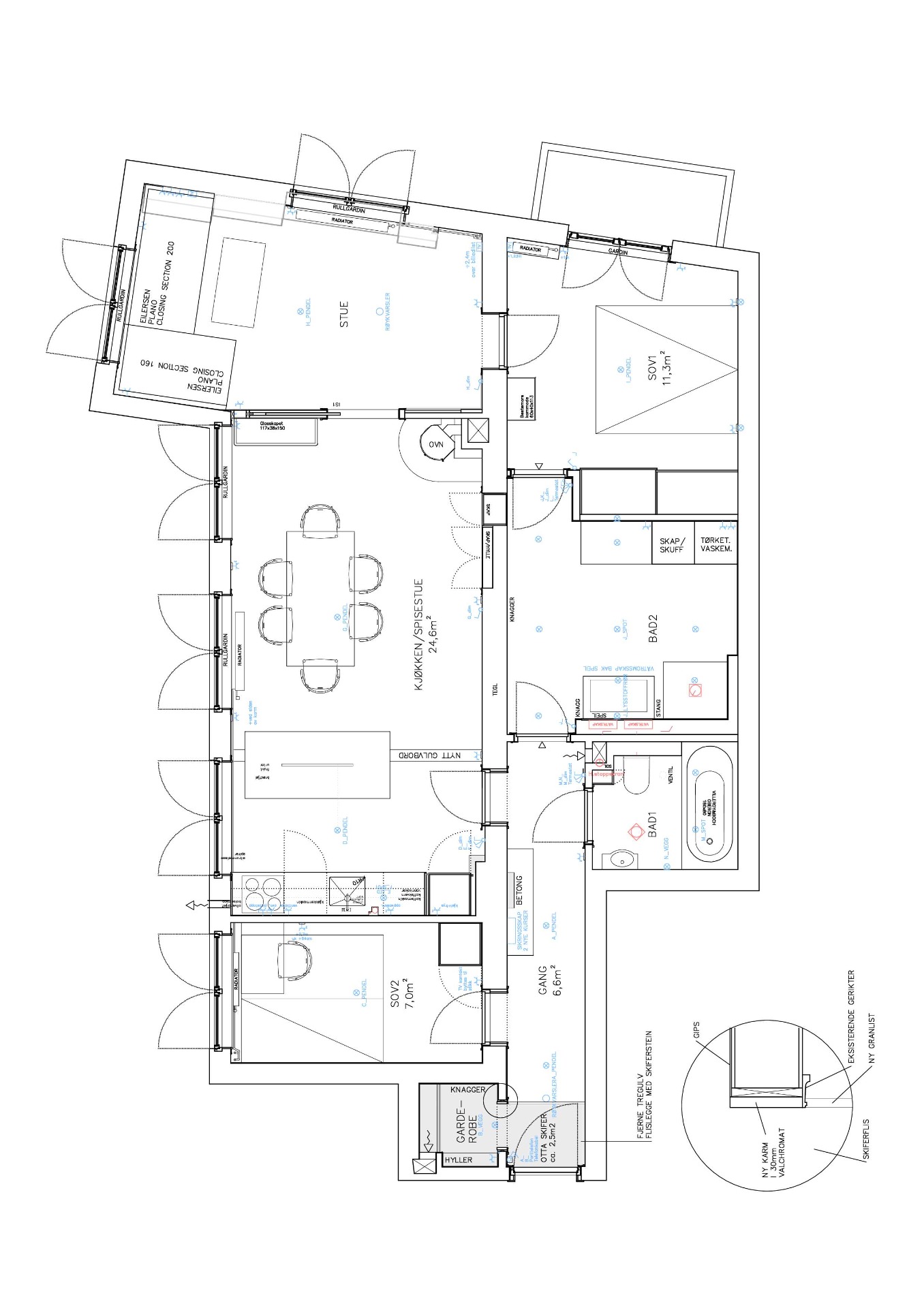
Ny plan
Høyskap flyttet inn til kortveggen og åpningen mot stuen er bredere med skyvedør slik at romflyten er bedre. Fin siktlinje fra kjøkken ut stuevindu.

Ottar skiferflis er lagt i inngangspartiet og inn i garderoben. Ny innredning i garderoben.