
Nytt bad og møbler i leilighet Oslo
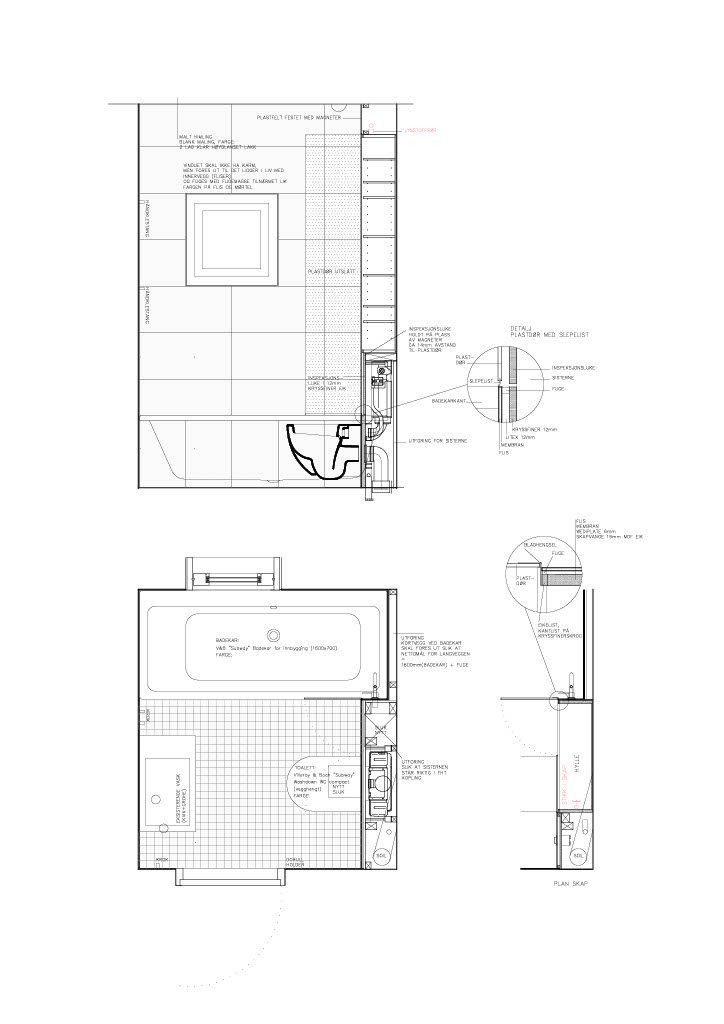
Nytt bad i en leilighet fra 1950-tallet.
Lyse hvite flis på vegger og marmor på gulvet.
Plassbygd innredning over toalett med opale plastdører.
2 nydelige små pendler fra Steng Licht.
Nytt spisebord og stoler tegnet av Hans Wegner, fra Carl Hansen & Søn.
