
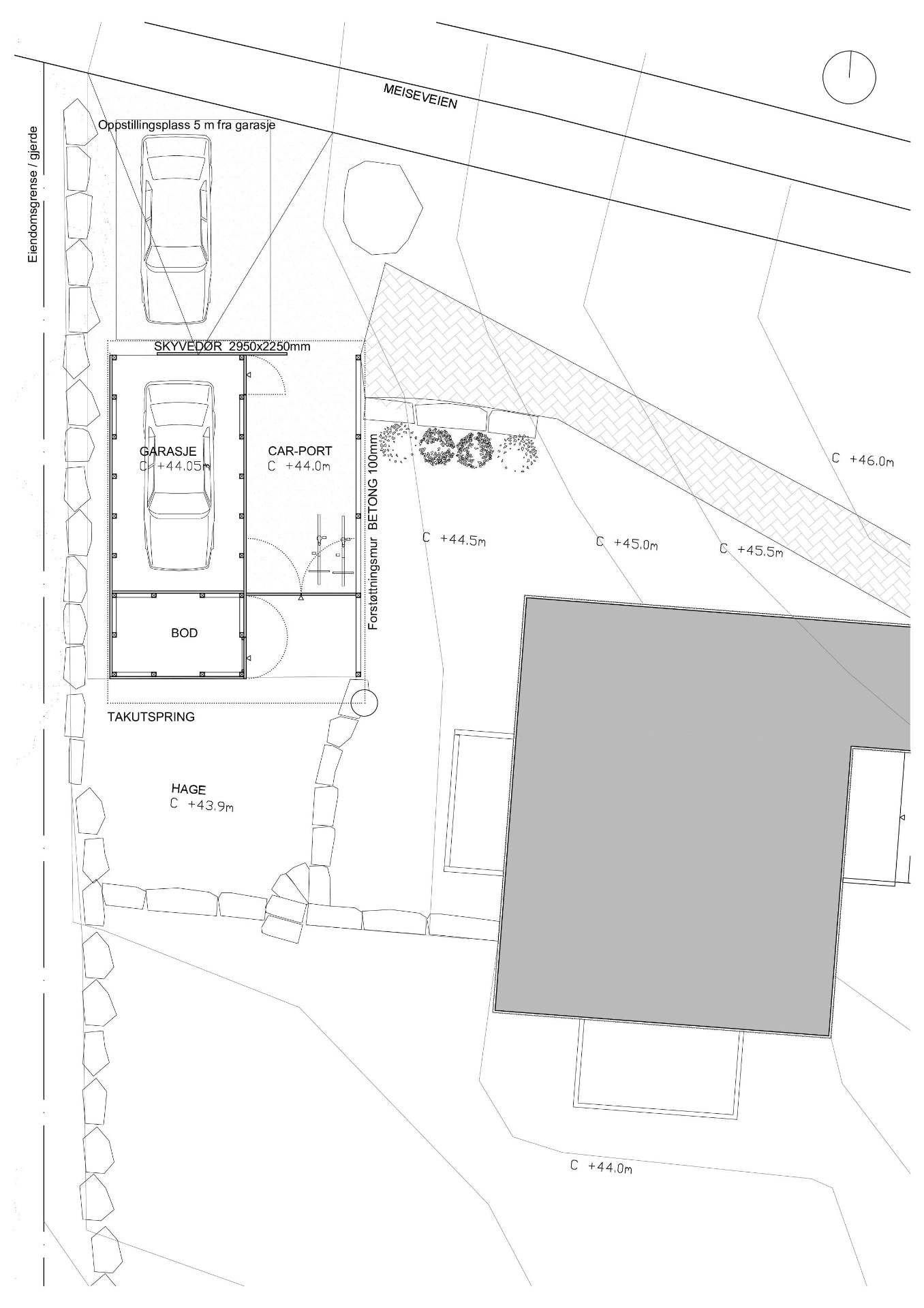
Carport på Nøtterøy
Carport med sykkelparkering og bod
Vegger i spilekledning og skyvedør i front
Søylefundamentering og gulv i grus lik innkjørsel
Prosjektet ble ikke bygget etter disse tegningene.
Byggherren endret carporten til garasje med tett kledning og andre dører. Se foto.

Garasje
Foto viser garasjen slik den ble bygget. Arkitekten var ikke med på den løsningen. Men formen likner litt på forslaget.