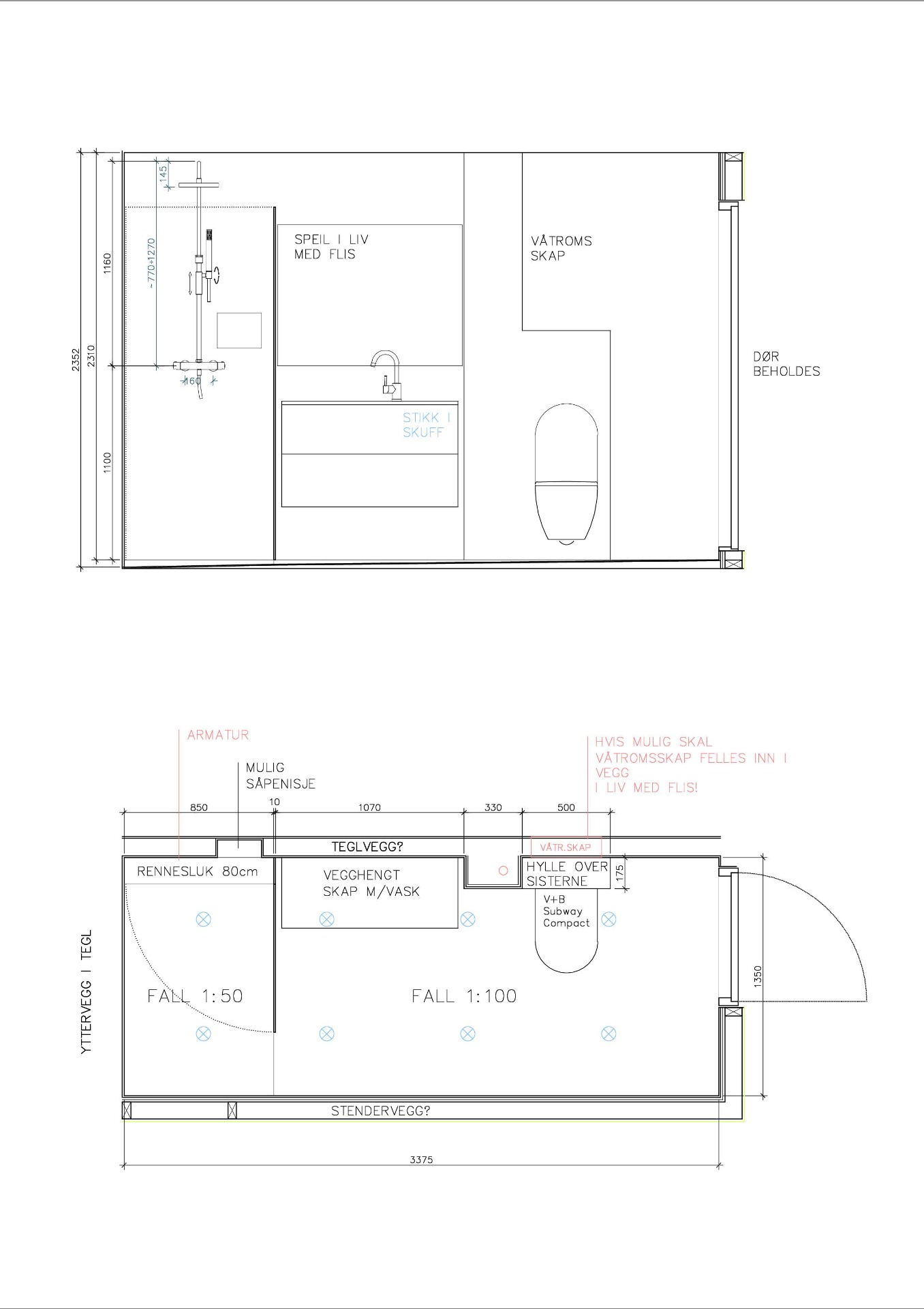
Opppussing av bad i leilighet fra 1900-tallet.
Nytt bad i lyse flis
Du kan tilpasse dine informasjonskapsler-preferanser her. Aktiver eller deaktiver følgende kategorier og lagre valget ditt.