
Ny spilevegg og innredning i leilighet Oslo
Gammel stall omgjort til leilighet fikk:
Ny skillevegg mellom gang og spiseplass
Ny garderobe i gangen
Ny innredning i tv-stue
Løsningen åpnet opp romopplevelsen og lyset mellom rommene.


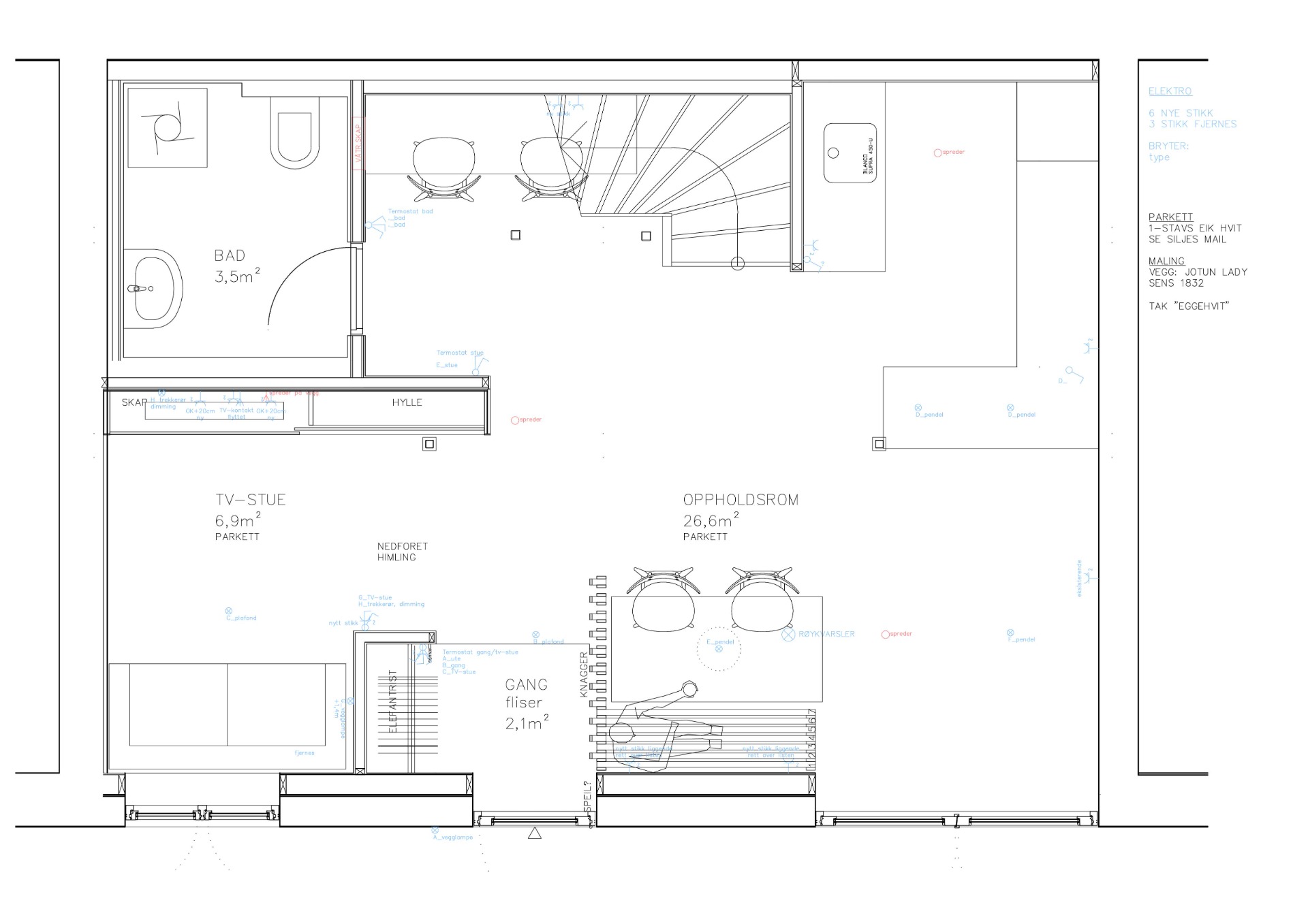
Gammel stall omgjort til leilighet fikk:
Ny skillevegg mellom gang og spiseplass
Ny garderobe i gangen
Ny innredning i tv-stue
Løsningen åpnet opp romopplevelsen og lyset mellom rommene.
